8 Wohnungen in Peiting
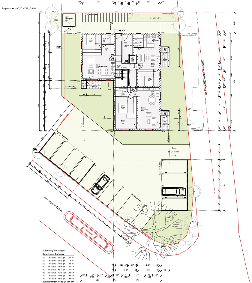
Im Süden Peitings wird von der Konstruktiv Bau GmbH eine barrierefreie Wohnanlage mit 8 Wohnungen in massiver Ziegelbauweise gebaut.
Das Grundstück liegt an der Ecke Ammergauer Straße und Ramsauer Straße. Die Wohnanlage ist nach Südwesten ausgerichtet.
Folgende Leistungsmerkmale und Ausstattungen sind in jedem Haus enthalten:
- Massiver Ziegelbau (Außenwände 36,5 cm hochwärmedämmend) für wohltemperiertes Raumklima und als exzellenter Wärmespeicher
- Gas-Brennwert-Therme mit Solarthermie-Unterstützung
- Fußbodenheizung in den Wohnräumen
- Barrierefrei mit Aufzug
- Carports und Stellplätze
- Abgeschlossenes Lagerabteil in Holz-Remise
- Lichtdurchflutete Räume durch große Fensterflächen
- Isolierglasfenster
- Leichtgängige Rollläden in allen Wohnräumen
- Elektrische Rollläden an Terrassen- und Balkontüren
- Mehrschicht-Holzparkett
- Sanitär-Markenausstattung "Sanibel"
- Hochwertige Fliesen
- Zahlung nach MaBV (Makler- und Bauträger-Verordnung)
- Bauleistungs-, Bauherrenhaftpflicht- und Feuerrohbauversicherungen
- Schlüsselfertig - Erschließungskosten inbegriffen
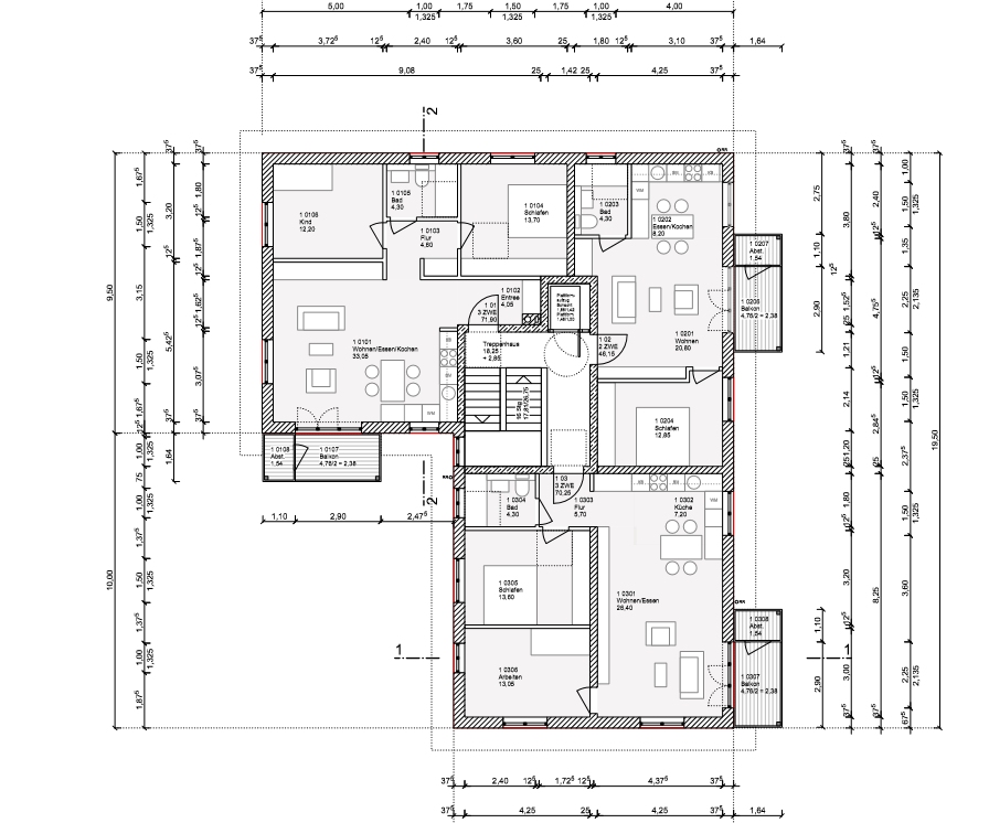
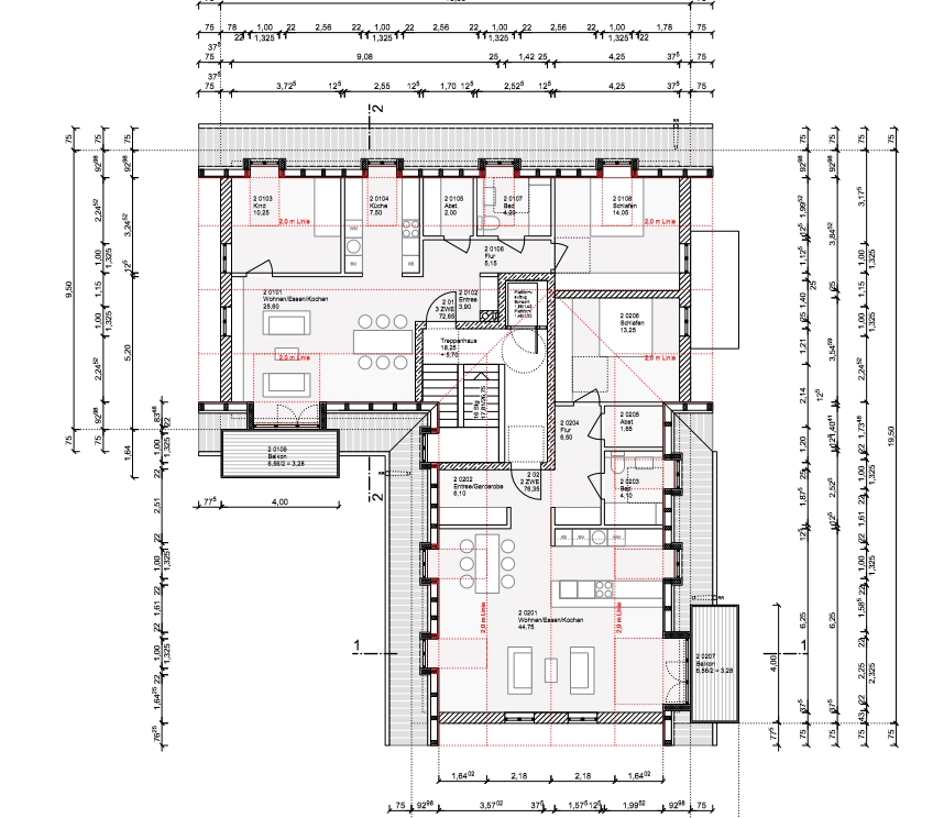
| Wohnung: |
|
E 01 |
E 02 |
E 03 |
1 01 |
1 02 |
1 03 |
2 01 |
2 02 |
| Wohnungsnummer: |
|
1 |
2 |
3 |
4 |
5 |
6 |
7 |
8 |
| Geschoss: |
|
EG |
EG |
EG |
OG |
OG |
OG |
DG |
DG |
| Wohnfläche: |
m² |
58 |
50 |
74 |
76 |
50 |
74 |
76 |
78 |
| Garten Sondern.-R.: |
m² |
97 |
82 |
42 |
0 |
0 |
0 |
0 |
0 |
| Grundstücksfläche: |
m² |
1.030 |
| Zimmer: |
# |
2 |
2 |
3 |
3 |
2 |
3 |
3 |
2 |
| Schlafzimmer: |
# |
1 |
1 |
2 |
2 |
1 |
2 |
1 |
2 |
| Badezimmer: |
# |
1 |
1 |
1 |
1 |
1 |
1 |
1 |
1 |
| Baujahr: |
|
2017 |
2017 |
2017 |
2017 |
2017 |
2017 |
2017 |
2017 |
| Bezugsfrei ab: |
|
2018 |
2018 |
2018 |
2018 |
2018 |
2018 |
2018 |
2018 |
| Anzahl Carports: |
# |
1 |
1 |
1 |
1 |
1 |
1 |
1 |
1 |
| Anzahl Stellplätze: |
# |
1 |
0 |
1 |
1 |
0 |
1 |
1 |
1 |